Proximity to the Great Lakes has long been a real estate selling point. For much of Cleveland’s history however, access to Lake Erie centered on industrial development. But in the post-industrial era, being close to the lake means attracting investment in recreational and residential uses.
That’s what the principals of WRJ Developers LLC are trying to do with their proposed development called ArkiTainer on 72nd. This would be the first apartment buildings in Cleveland built from repurposed shipping containers. WRJ is the first initials of the firm’s managing members — Willie Levy, Richard Singleton and Jermaine Brooks.
Located on the east side of East 72nd Street, between Gordon Park and St. Clair Avenue, the $13.8 million, 70-unit residential development would replace several abandoned apartment blocks and vacant lots with three, four-story buildings totaling 51,200 square feet. The developers are trying to brand the area “Edgewater East,” referring to Edgewater Park and the booming, neighboring residential development on the city’s near-west side.
Fifty of the units would be priced as affordable housing with the rest market-rate. Through WRJ Investment Fund, LLC, the developers have acquired four parcels and have options on three others, 887-915 E. 72nd, totaling about 1 acre, according to?plans posted at OpportunityCLE.com.
![]() |
| Proposed site of ArkiTainer on 72nd, located in Glenville (MyPlaceCleveland.com) |
The development site is located in the Glenville-Rockefeller Park Innovation District — a designated Opportunity Zone. It is home to the 30-acre Shoreway Commerce Park, formerly the truck assembly plant for White Motors, redeveloped by First Interstate Properties a decade ago. Also, Michael Cantrell’s New Creation Builders earlier this year bought 2.6 acres of land just north of WRJ’s development site.
“We are seeking Opportunity Zone Equity and private equity investors to raise 25 percent equity for project financing,” WRJ Developers said in a written statement. “WRJ Investment Fund, LLC is prepared to accommodate all Opportunity Zone investors.”
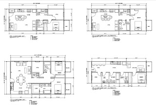
ArkiTainer on 72nd is proposed to be a mix of 50 one-bedroom, one-bath apartments and 20 two-bedroom, two-bath and in two or three connected shipping containers, respectively. Each two-bedroom apartment also has an office that might be used alternatively as a bedroom for a small child.
The one-bedroom units would measure about 640 square feet while the two-bedroom units would measure about 960 square feet. All units are proposed to have either decks or balconies, plans show.
![]() |
| An example of a four-story apartment building in London that was built from shipping containers (InvisiblePeople.tv). |
| One- and two-bedroom apartment options that would be built from two and three containers, respectively (A&A). |
END





