Project to test city’s new form-based zoning
Three years ago, a team led by Beachwood-based Property Advisors Group (PAG) planned to build a large residential development at 8400 Lake Ave., overlooking Edgewater Park in Cleveland’s Detroit-Shoreway neighborhood. But with construction costs and interest rates rising, the timing wasn’t right. While costs are still high, the city’s new form-based zoning code may make a scaled-down project achievable and in a timely manner.
So a development team led by PAG submitted plans to the city’s Building Department this week to see how the zoning review process may move forward in one of Cleveland’s four form-based code pilot districts.
Based on how many other developers, urban planners and real estate professionals complain about the city’s sluggish permit approval process, there is likely going to be a large audience carefully watching this project’s progress, too.
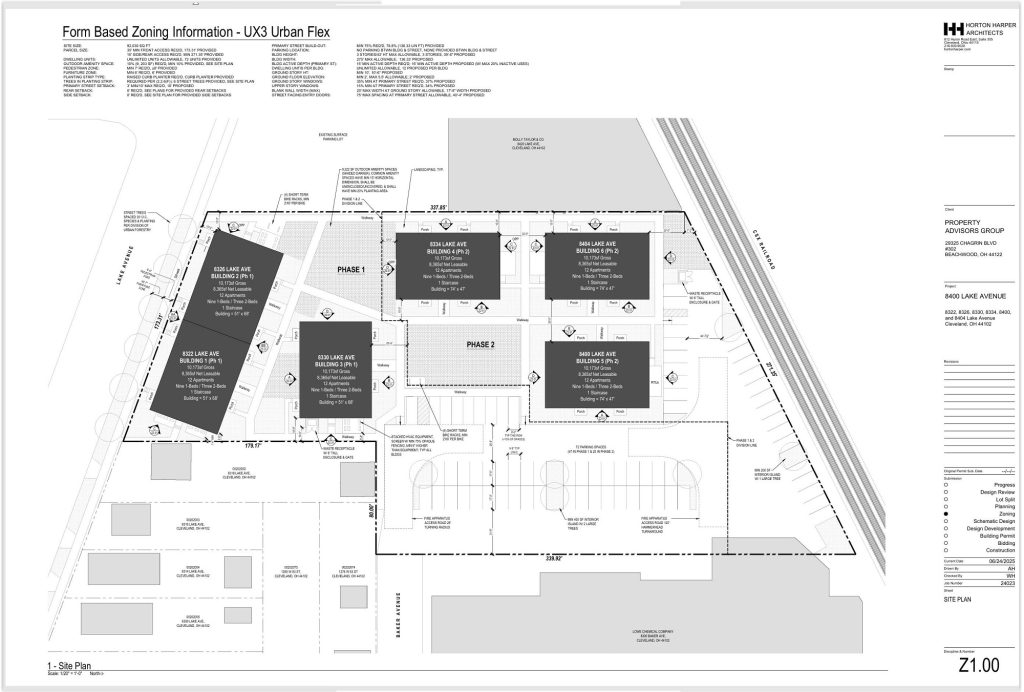
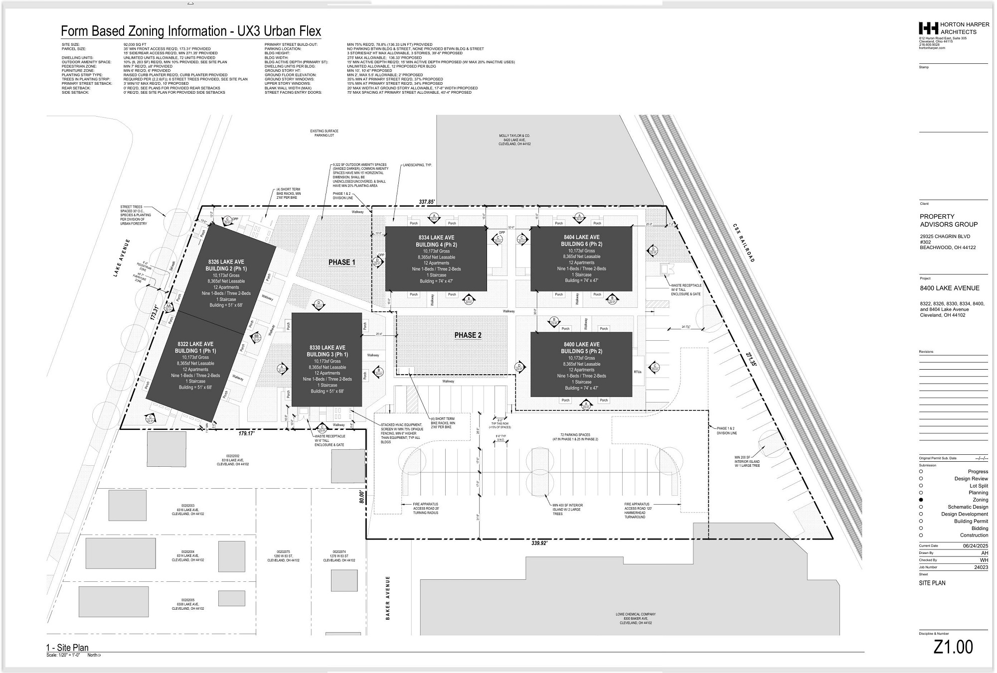
What is planned? A two-phase, 72-unit development is designed to offer rents that are priced to be affordable to the middle of the market. PAG Vice President of Development Brad Nosan calls that market “the missing middle” in Greater Cleveland and other regions due to the difficulty in gaining financing to build it.
“There is plenty of legacy product which fulfills that ‘missing middle’ typology, but not many that affords residents some of the finishes and niceties that come with new construction,” Nosan said in an interview with NEOtrans.
For 8400 Lake’s new iteration, Nosan said prospective renters should expect a collection of smaller, walk-up style apartment buildings located in a campus-like setting with ample green space and some light touch, common-area amenities.
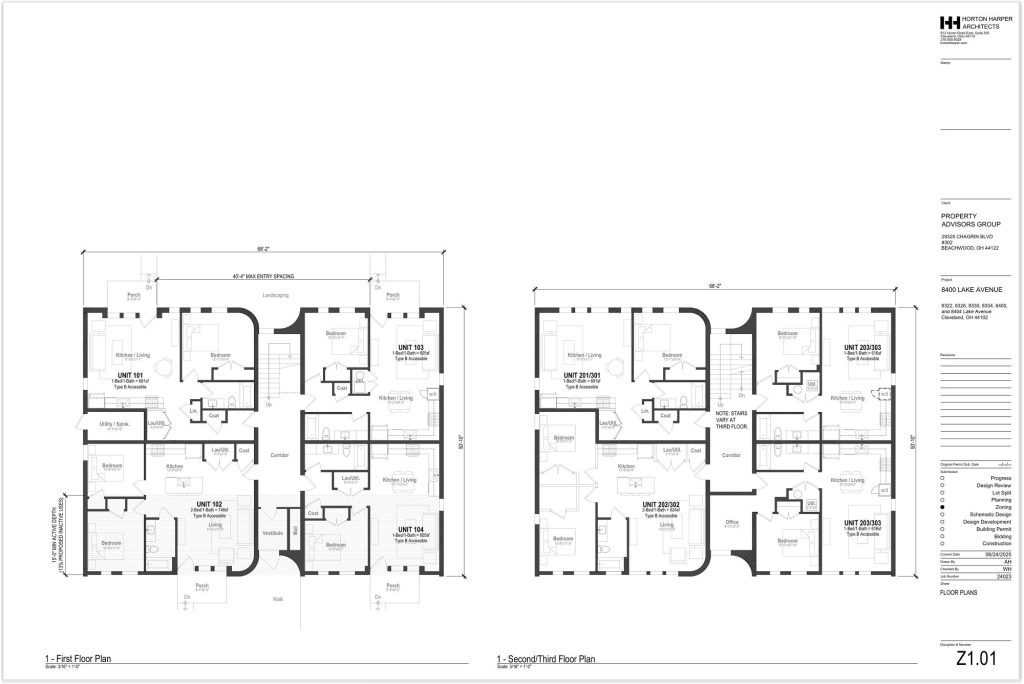
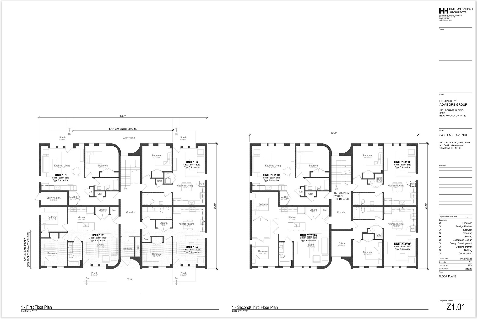
The preliminary concept to be aired in the city’s design review process is to build six identical 12-unit apartment buildings, each one measuring 10,173 square feet. Each building will have nine one-bedroom apartments and three two-bedroom suites.
All of the buildings are planned to be three stories tall so they can be structurally supported with less expensive wood framing. No expensive elevators need to be built, operated and maintained.
Nor is any costly structured parking deck required. Three buildings with 36 units and a 48-space parking lot are planned for the first phase, near to Lake Avenue. Two buildings along Lake will be connected to give the development a stronger street presence.
Plans show the second phase will add three more buildings and another 24 parking spaces at the north half of the property. Two grassy amenity spaces measuring about 9,300 square feet each, one in each phase, are planned.
“In order to achieve this, we have teamed up with White Label Construction who has had success with this type of product,” he added. “We are also working with them on Franklin North, the walk-up product we are constructing on West 32nd and Franklin (in Ohio City).”
Zoning for the southern half of the 8400 Lake site, where phase one is planned, is UX3 — Urban Flex allowing buildings up to three stories or 42 feet in height. The north half of the site where phase two is proposed, is zoned IX3 — Industrial Flex and allowing buildings up to seven stories or 94 feet in height.
“The PAG team is excited to test the form-based code process as it allows us to do so,” said Nosan. Cleveland-based Horton Harper Architects is 8400 Lake’s designer.
“As a team interested in good urbanism, we want to test this code through the city’s process and show that it can hopefully increase approval times on the city’s level, in turn accelerating our development timeline,” Nosan continued. “If it works, we are hopeful that this will be a win-win-win for us, the city, and good urban planning.”
RGMB 1 LLC, a PAG affiliate, bought the 2.1 acres of land in 2021 for $1.25 million from the Spurgeon family, according to Cuyahoga County property records. The family operated B & K Scaffolding Co. out of a 17,000-square-foot warehouse on the site.
That building, parts of which dated back to 1890 and was rated by the county to be in fair to poor condition, was demolished several years ago by PAG. The demolition work was the last visible activity happening on that site.
Back then, PAG proposed 8400 Lake as a 183-unit apartment complex including 13 three-story townhomes to be built by Knez Homes along Lake with a seven-story, 170-unit apartment building atop a parking garage next to the Norfolk Southern railroad tracks, overlooking Edgewater Park and Lake Erie. Knez is not a part of the current plans.
“I think you can ask many townhome developers that that market is extremely soft in the city right now,” Nosan said.
This is the latest residential redevelopment in a fading, aging industrial area north of Lake and south of Edgewater Park. Construction is progressing nearby on a 13-story luxury apartment tower to expand The Shoreway Apartments, 1200 W. 76th St.
A nine-story building and two-story parking garage are under construction to add 110 apartments and 169 parking spaces to an historic warehouse that was converted in 2014 to 45 apartments. The Shoreway’s existing apartments will be renovated.
END








