
An early rendering of a redeveloped Westinghouse factory shows several features still in updated plans. The most prominent is the eight-story tower reflecting a sunrise over Downtown Cleveland. Next is the façade of the old foundry which will remain, but this doesn’t show the new foundry building proposed behind it. And in the background is a phase-two development idea that remains to be seen if it is still relevant (AoDK Architects). CLICK IMAGES TO ENLARGE THEM.
Project uses, phasing ID’d in public filing

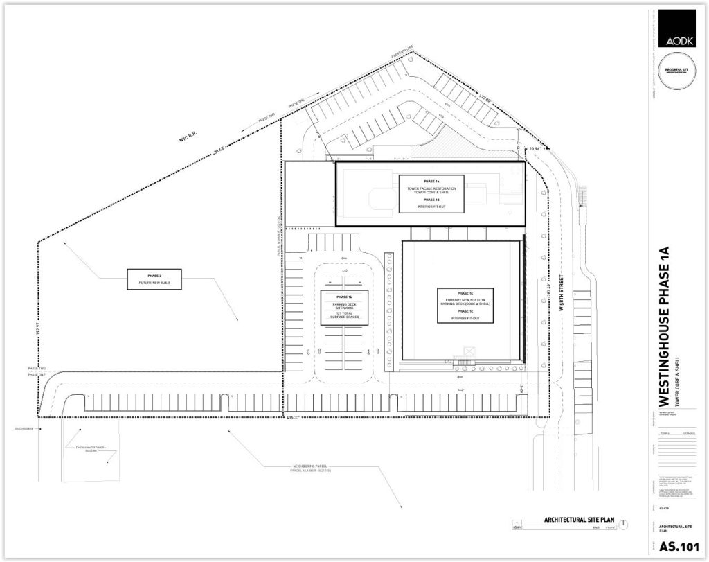
After two years of outward silence, redevelopment of the former Westinghouse plant is showing new signs of life. Those signs are in the form of updated plans for the project which have become public. The vacant Westinghouse plant is located at 1200 W. 58th St. in Cleveland’s Detroit-Shoreway neighborhood.
The new plan features an all-residential conversion of a tower overlooking Edgewater Park. It will be joined to an underground parking garage, accessed by vehicles from the north, and topped by a new, five-story building with two levels of commercial uses and three levels of additional residential units. And that’s just the first phase.
The project came back publicly in a July 18 filing with Cleveland’s Building Department that describes the $59.3 million project’s proposed uses, phasing and costs. But it gives no indication on the timing of the project’s phases or when its financing might close.
However, there are rumors that financing could close as early as next month. Project principal Michael Trebilcock Jr. of Trebilco Westinghouse LLC said he hopes to be able to share more at that time.
“We do have a new partner on board and are back on track,” Trebilcock said. “I cannot confirm any further details at this time.”

Site plan of the Westinghouse redevelopment shows how its various features would look from the air. North is at the top of the image. But what cannot be seen is a lower-level parking garage to the east of the phase-two portion and south of the historic tower. That lower-level of the garage will also be below the new, five-story foundry building whose historic façade overlooking West 58th Street will be preserved (AoDK Architects).
The potential prospect of imminent financing may be a reason why the project’s designer, AoDK Architecture of Lakewood, submitted updated, preliminary plans to the city for a zoning review.
As proposed, the 265,000-square-foot development would start by renovating the core and shell of the 113,680-square-foot historic tower. The 1915-built, eight-story, 136-foot-tall tower saw interior demolition work done in 2023, reducing the building to its core and shell.
Next, the construction team led by Cleveland-based Krill Co. plans to build a two-level parking garage with 222 spaces. The garage’s 101-space lower level will have an at-grade vehicular entrance on the north side of the property, next to the railroad tracks.
But the south side of the garage’s lower level will be below ground. Atop much of the lower-level garage will be an at-grade, open-air parking lot with 121 spaces. Constructing the garage, especially excavation of the eastern portion, will have to be done carefully.
The reason is that the brick façade of a former Westinghouse foundry building remains in place and is planned to be incorporated into a new five-story, roughly 80,000-square-foot, mixed-use building built atop the eastern portion of the garage.

East elevation of the Westinghouse redevelopment as seen along West 58th Street. The historic tower is at right and the facade from the old foundry building fronts the new foundry building. The configuration of the new foundry building is shown here in the plans only to solicit a zoning review from city Building Department staff could change as a result (AoDK Architects).
That new foundry building is planned to be the next step in the first phase of construction. It will feature about 32,000 square feet of commercial use on the first two floors and roughly 50,000 square feet of residential on the top three floors.
Plans note that the configuration of the the parking garage and the new five-story building may change. The general parameters of both features are provided for in the plans to solicit Building Department staff feedback on what the zoning code will allow.
Based on the square footage dedicated to residential, about 110-115 apartments could be located in the tower plus another 50 apartments or so in the new foundry building. A specific number was not identified in the plans submitted to the city.
Rumors are that some of the residential units could be condominiums. The Westinghouse tower will have unobstructed views of Lake Erie to the north and Downtown Cleveland to the east.
The commercial use wasn’t identified either but Cleveland-based information technology company MCPc Inc. has expressed interest in leasing commercial space here, such as warehouse and office spaces, in the Westinghouse development. MCPc was founded by the Trebilcock family which is leading this redevelopment project.
When the tower was gutted two years ago, a 102,000-square-foot manufacturing building to the west of the tower was also razed along with two-thirds of the 63,000-square-foot foundry.
The remaining portion of the foundry structure, to the west of the façade, was kept to support the façade. The new foundry building will support the façade in place of the old, remaining foundry structure, plans show.
Once the new five-story foundry building is built, the interiors of it and the historical tower will be built out. These will be the last steps of the first phase, per the submitted plans.
“The scope includes structural modernization, envelope upgrades, new infrastructure and interior fit-outs,” according to AoDK’s July 18 filing.
A hotel was prominently mentioned as a major part of a previous plan but there are no references to a hotel now. A tiny boutique hotel of only about 10 rooms could fit into the proposed commercial space in the new foundry building. Or a hotel could be left for the roughly 1.25-acre phase-two site of the Westinghouse redevelopment.
Multiple companies were created for and/or are involved in the project. The development team is led by TW58 Cleveland LLC, whose business name before October 2021 was Westinghouse Cleveland LLC.
That same month, Westinghouse-Breakwater Properties LLC, bought the 3.6-acre property for an undisclosed amount, county records show. And, in May 2023, Trebilco Westinghouse LLC was formed.
That company was named, in part, for the Trebilcock family that founded Cleveland-based MCPc Inc. It is an information technology company that helps businesses manage security risks and logistical challenges.
The Westinghouse Lighting Division ceased operations at the plant in 1979 after nearly 100 years. The factory was leased by the Kole family in 1981 and bought in 1986 for their Paramount Stamping, Welding & Wireforming Co. Paramount made steel automobile seat frames and employed 300 people but closed in 2019.
END





