
The next aging office building in Cleveland’s urban core that’s proposed to be converted to residential is near the intersection of Euclid Avenue and East 30th Street. Because of the adjacent Innerbelt highway, this building has a clear view of Downtown Cleveland (Vocon). CLICK IMAGES TO ENLARGE THEM.
Edge-of-downtown office building to be converted

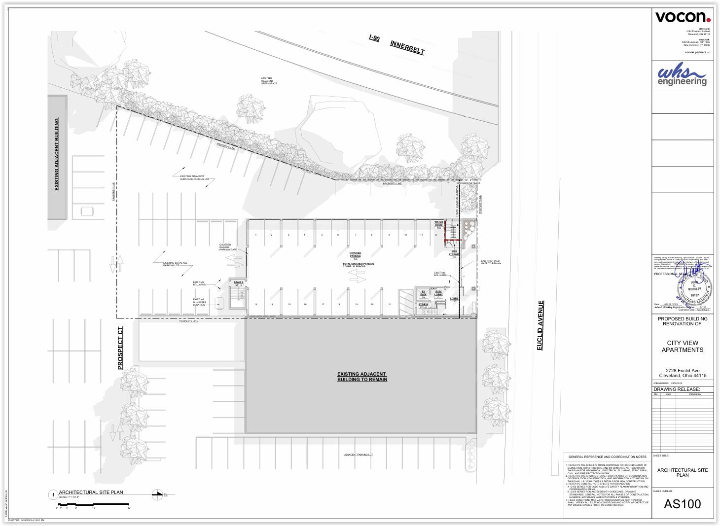
Plans were submitted to the city yesterday for the latest conversion of an aging, post-war office building near the intersection of Euclid Avenue and East 30th Street. But the proposed conversion at 2728 Euclid Ave. may come at a bargain price.
Several vacant, obsolete office buildings nearby in the Euclid-East 30th area were recently converted. These apartments — Innerbelt Lofts, University Studios, ThebMidtown Apartments — have more affordable prices than those in the central business district.
Yet they offer easy easy car, bike and transit access to Downtown Cleveland and University Circle — the first- and fourth-largest employment centers in Ohio. Cleveland State University also been a draw for tenants to these buildings.
According to plans submitted to the city’s Building Department, a mere $1.8 million will be invested to create 33 apartments on floors two through five with indoor, ground-floor parking for the 30,505-square-foot building. There are also about 230 surface parking spaces on the three-parcel property.

Ground-floor uses for the Innerbelt Buildings are shown here. The gray-shaded building is the larger office building next to the building to be converted to apartments. Its indoor parking on the first floor is seen here along with many exterior parking lot spaces. North is to the right in this image (Vocon).
“City View Apartments is a five-story, 30,000-square-foot conversion of a historic office building into apartments,” wrote Michael Augoustidis, a project director at Cleveland-based architectural firm Vocon Partners, in submitting plans to the city.
“The building use is currently B (business) and is changing to R-2 (multiple residential units),” he continued. “The construction is 1A (high-level fire-resistance) on the ground floor and VA (fire rating) on floors 2-5 with a one-hour (fire) separation between floors. Residential units are all demised with rated assemblies. Staircases and elevators are existing to remain.”
Three adjoining properties in this block are owned by Tri Building Associates which in turn is owned by longtime real estate investor and developer J. Gordon Premier.
This building is the smallest of two so-called Innerbelt Buildings with the larger, six-story building next door at 2800 Euclid. They were built in 1956 and renovated in the early 2000s with modern office and educational spaces for business and culinary incubators.
The larger Innerbelt Building will remain as offices. And the to-be-converted office building isn’t empty unlike others nearby that were recently converted. Several tenants in the building are relocating.
One of them is Life Solutions South which provides mental health, behavioral health and substance use services to individuals, families and communities.
The treatment center submitted plans this week to the city to renovate a century-old, two-story commercial building at 3865 Carnegie Ave. Life Solutions South LLC acquired the Carnegie property in December of 2023 for $350,000 according to Cuyahoga County property records.
J&M Real Estate Advisors invested about $5 million in the properties this century. J&M Real Estate Advisors is owned by Premier.
Much of Premier’s investment and development attention has been focused on Midtown. He recently sold land about 15 blocks farther east on Euclid for a new residential development by Signet Real Estate Group.
That development is a three-building, mixed-use development at 4209 Euclid and temporarily carrying the working title of Midtown Site. Its plan was approved by the Planning Commission this summer. That site is currently used as a parking lot.
Additional properties in the Euclid-East 30th area could soon be facing redevelopment plans of their own. That includes the vacated, four-story Cuyahoga County Board of Elections building, 2925 Euclid.
END





