Teaching kitchen coming to Hughes Center
A large number of a hospital’s patients are treated for avoidable health problems, with many of those traced to what we eat. For many of us, we didn’t learn enough about healthy foods or how to prepare them. Or we simply forgot in our grab-n-go, fast-food culture.
The Cleveland Clinic hopes to change that by making a big investment in developing the Langston Hughes Community Health Food Services, 2390 E. 79th St., near the Clinic’s main campus in Cleveland’s Fairfax neighborhood.
The investment, about $1.6 million, is an acknowledgment that lives can be improved through transformative culinary and lifestyle education. And it is an recognition that this goal cannot always be achieved on our own.
“We’re so excited about this happening,” said Jacqueline Bailey, senior director of community health at the Cleveland Clinic. “It’s been in the works for several years. One of the top Clinic priorities is healthy foods, especially for children so we can improve health behaviors and address things like chronic obesity.”
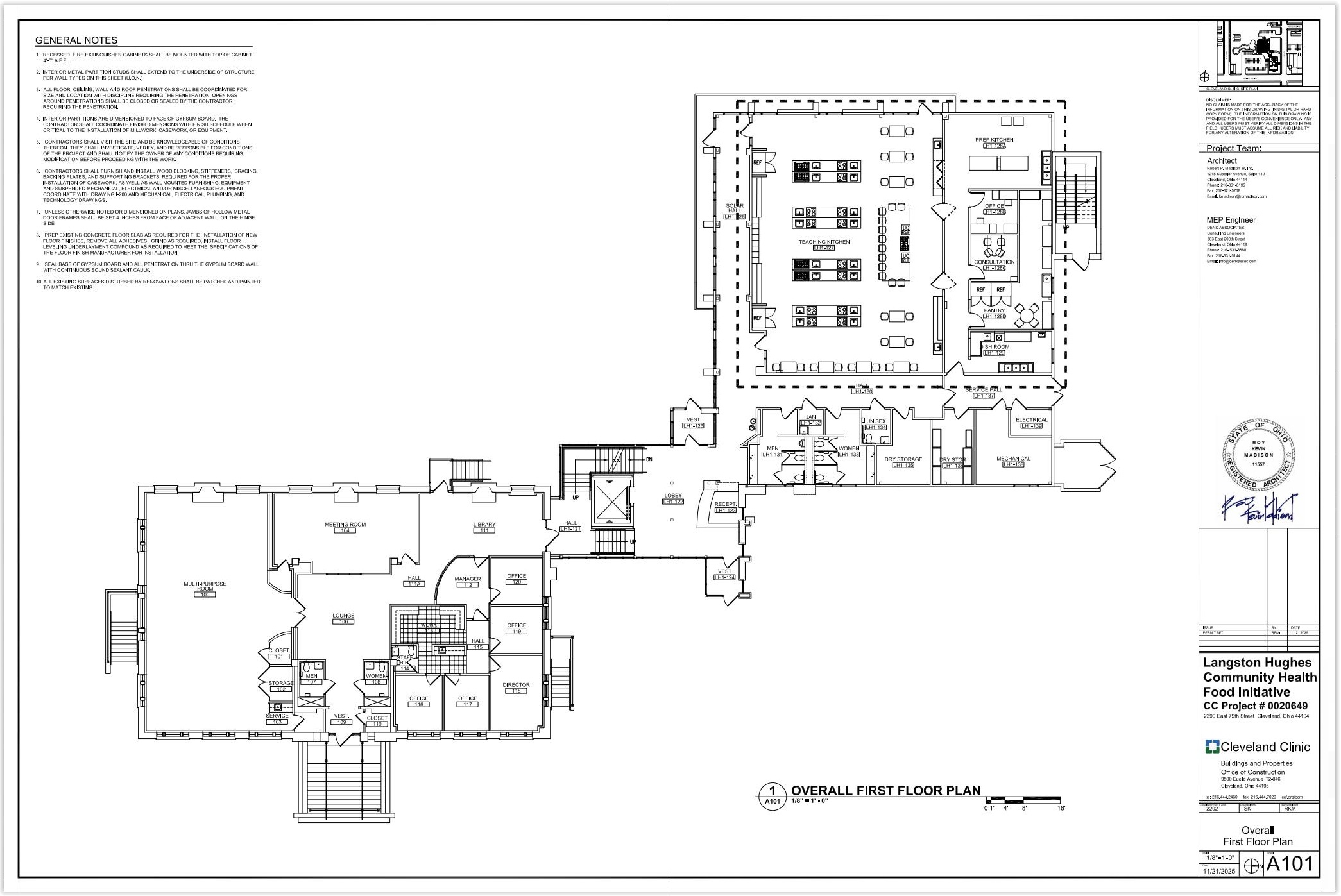
Clinic staff chose the Langston Hughes Community Health and Education Center, a former Carnegie Library that is owned by the Fairfax Renaissance Development Corp.
This site was selected because they view it as the “front door” to the Cleveland Clinic’s Main Campus. It has a gym with state-of-the-art technology, wellness education programming and enough space to accommodate the teaching kitchen.
David Berlekamp, the Clinic’s interim director of its Healthcare Design Studio, said the space that will be converted to the teaching kitchen was previously used as a multipurpose room. The 4,835-square-foot space will be retrofitted with 16 teaching stations.
“We’re basically creating a residential-type kitchen scenario and adding demonstration areas with each station,” Berlekamp said. “We’ll broadcast it on monitors, record and telecast it out on the Web or share it digitally on demand.”
“We’re hoping to do engagements with outside organizations,” Bailey added. “There are multiple opportunities for classes of up to six weeks with shared appointments and people can shop at its food pantry.”
Berlekamp said the goal is to get construction permitting approved by the city in the first few months of 2026, get construction underway soon thereafter, and open by the end of 2026.
Cleveland-based Robert P. Madison International Inc. is the project’s architect and R.L. Hill Management, Inc. of Solon is the general contractor. Both are minority-owned firms.
According to a construction permit application filed recently with the City of Cleveland’s Building Department, the alteration and renovation work will be focused on the Hughes Center’s first floor.
There, at the back of the Hughes Center, the multipurpose community room will be rebuilt with an instructional area, two new office rooms and a pantry room inside of an existing preparatory kitchen, the application noted.
Additional work will include new appliances, new millwork, new counters, new floor, wall and ceiling finishes, plus new mechanical, electrical, plumbing and technology systems.
Bailey said a pilot program for the teaching kitchen already exists at the Cleveland Clinic’s Stephanie Tubbs Jones Health Center, 13944 Euclid Ave., in East Cleveland. But it has the space for only five or six people and the classes are often at maximum capacity.
“We learned a lot from that kitchen and modeled the Hughes Center after another kitchen at Boston Medical (Center),” she said. “It (the Tubbs Jones kitchen) will continue in operation even after the kitchen at the Hughes Center opens.”
END







