Development sought to repopulate vacant lands

Developing in a neighborhood where much of the neighborhood is gone has its plusses and minuses. On the upside, it’s a chance to reboot the community without upsetting existing neighbors because there aren’t many left. And in this case, one of them is a member of the development team so there’s little chance of a NIMBY backlash.
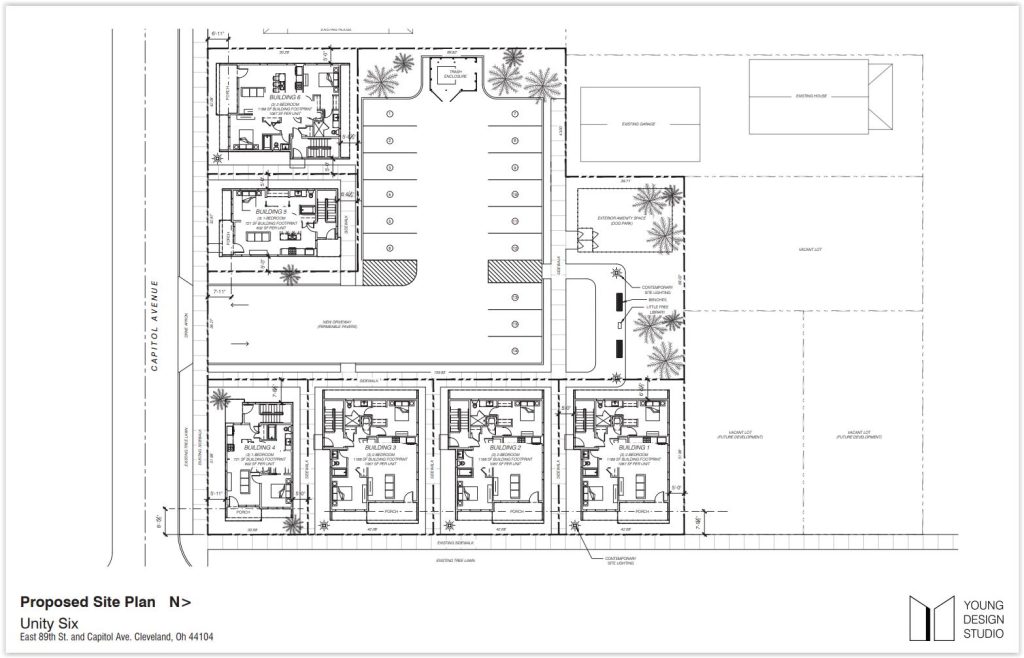
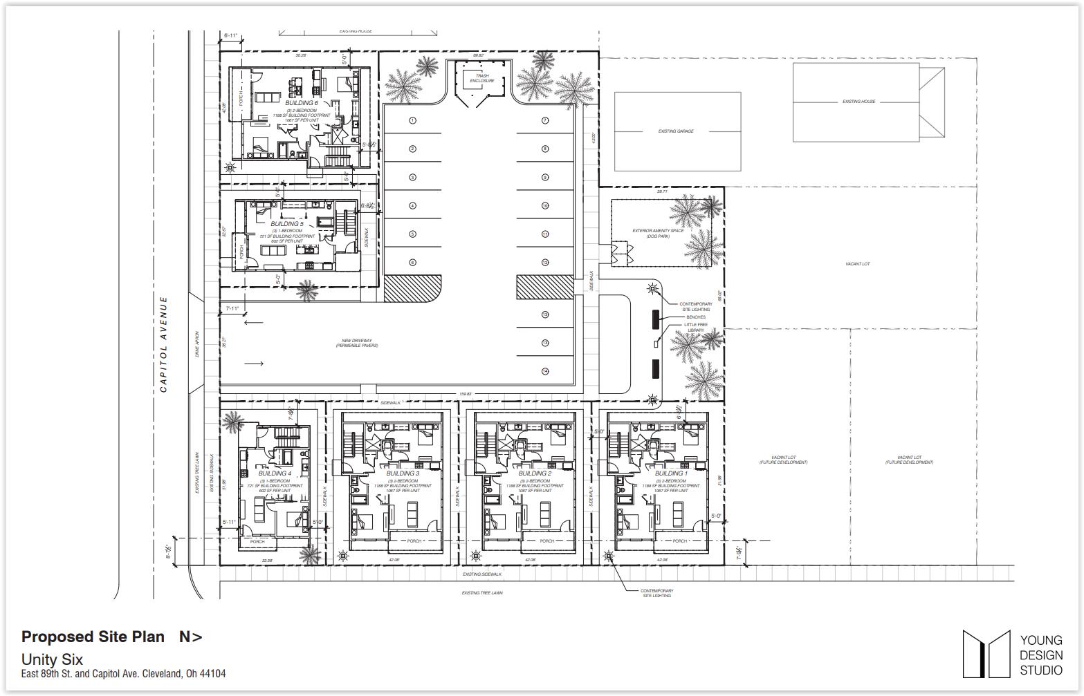
At the southern part of Cleveland’s Fairfax neighborhood, at the northwest corner of East 89th Street and Capitol Avenue, Blaqlux Management of Cleveland and Tampa, FL plans to build Unity Six — comprised of six triplexes with space for future expansion. In fact, one can argue there’s too much space for expansion.
That’s the downside of investing in a neighborhood that had hit rock bottom long ago. There’s not much of an existing market an investor can point to and say what its value is. But when a neighborhood hits rock-bottom, up is the only way left to go. That is, if someone is willing to risk giving it a nudge.
That’s not to say there isn’t momentum nearby to help sustain investment here. One is the Cleveland Clinic’s Main Campus, less than one mile north. Between the Clinic and Unity Six’s site is the Karamu House Theatre and new residential developments along East 89th. Just to the south is the four-year old Opportunity Corridor Boulevard.
Unity Six is intended to be affordable as workforce housing for households earning up to 80 percent of the Area Median Income (AMI). They will be marketed to teachers, healthcare employees, service workers and long-time Cleveland residents who want to remain in Fairfax but are often priced out of newer housing.
The 18 apartments are designed as six one-bedroom, one-bath units measuring 602 square feet each and 12 two-bedroom, two-bath suites offering 1,067 square feet each, according to plans presented at today’s City Planning Commission meeting.
Commission members unanimously approved the conceptual plans for the project. They urged the development team to skip the schematic review and instead come back with their final plan for review and possible approval.
The development team said this project is being advanced in partnership with Fairfax Renaissance Development Corporation Executive Director Denise VanLeer and City Council President and Ward 6 Councilman Blaine Griffin.
“I’d like to commend you for trying to create the market,” said Planning Commission Vice Chair August Fluker to Blaqlux principal Olivia Diop at today’s meeting.”Sometimes you have to be out front in order to do it. The numbers and appraisals might not say where it should be but sometimes you have to create that market.”
Another benefit of developing in an area where there is a lot of abandonment is that an architect can have more leeway in designing. Often, architects base their designs not just on the building’s function but its surroundings, called context.
“One of the focuses we’re trying to do is adapt to a little bit of the context that’s there,” said Fred Wolfe, a designer at Lakewood-based Young Design Studio. “But again, there’s a lot of vacant lots that we’re working around so we kind of used that as a little bit of flexibility as to what can define our housing to be.”
The triplexes are a design nod to the neighborhood by having traditional gabled roofs. And those rooftops don’t exceed 35 feet in height — typical of the remaining houses nearby. But they are contemporary in design, offering clean lines and simplicity. They also don’t have garages.
In addition to on-street parking, 15 off-street parking spaces are proposed for Unity Six in a small parking lot next to an planned, illuminated amenity space. That space will be a little park with a bench, free library and dog park.
Diop lives across East 89th from the Unity Six development site in an historic house that was recently renovated by Blaqlux. The firm renovated and managed for-rent residential properties around University Circle.
Blaqlux has also demolished unsalvageable homes in the area including one on East 89th next to the Unity Six development site. The demolished house was on a property that is going through a foreclosure and state forfeiture. Blaqlux is seeking to purchase that parcel and others for future expansion.
“It is a little bit of a process for us to have been able to purchase those,” Diop said. “We do in the future have plans to extend this (development) into those lots which is why we didn’t have the parking lot take over those spaces and instead we would add additional parking later on.”
“I like the housing,” Fluker said of the project’s plans. “You’re creating density without doing an apartment building. It’s more dignified living if you can get the density up. People have their own entrance. The simplicity of the design is wonderful.”
The site is connected to the Opportunity Corridor via a pedestrian walkway over the railroad and Red Line tracks. While there isn’t much to walk to right now, that could change soon with a planned major expansion of the Miceli Dairy Products and other future employers.
“There needs to be more development around Opportunity Speedway — yes I did say speedway because that’s what it is right now, unfortunately,” Fluker said.
END







