
Camelot Bakery is proposed to be built in phases at the intersection of Madison Avenue and West 105th Street in Cleveland’s Cudell neighborhood, replacing their existing, cramped building on the same site. This is an updated rendering showing a new color palette and glass-block windows along the first floor of the Madison frontage. The bus in the background is shown on West 105th Street (Meraki). CLICK IMAGES TO ENLARGE THEM.
Local entrepreneurs build on their success
It’s the kind of success story just about everyone cheers for and it’s a story that Cleveland needs more of. It’s the story of a husband-and-wife team growing a business they started, outgrowing their first building in Cleveland to the point they need a new one — and are staying in Cleveland.
Joseph Starr and Rebekah Piper, founders and co-owners of Camelot Bakery, rented a tiny, 1,360-square-foot building at 10401 Madison Ave. for their business for 10 years. At first, they had plenty of space at the former Royal Castle restaurant for making their jumbo pretzels, pastries, cookies, cakes and hand-crafted desserts for wholesale customers.
But now a dozen employees must work in shifts making jumbo pretzels for area hotels, restaurants, coffee shops and the Cleveland Metroparks. Business has grown so much that they are planning a two-phase, 9,976-square-foot expansion next door, according to plans submitted to the city.
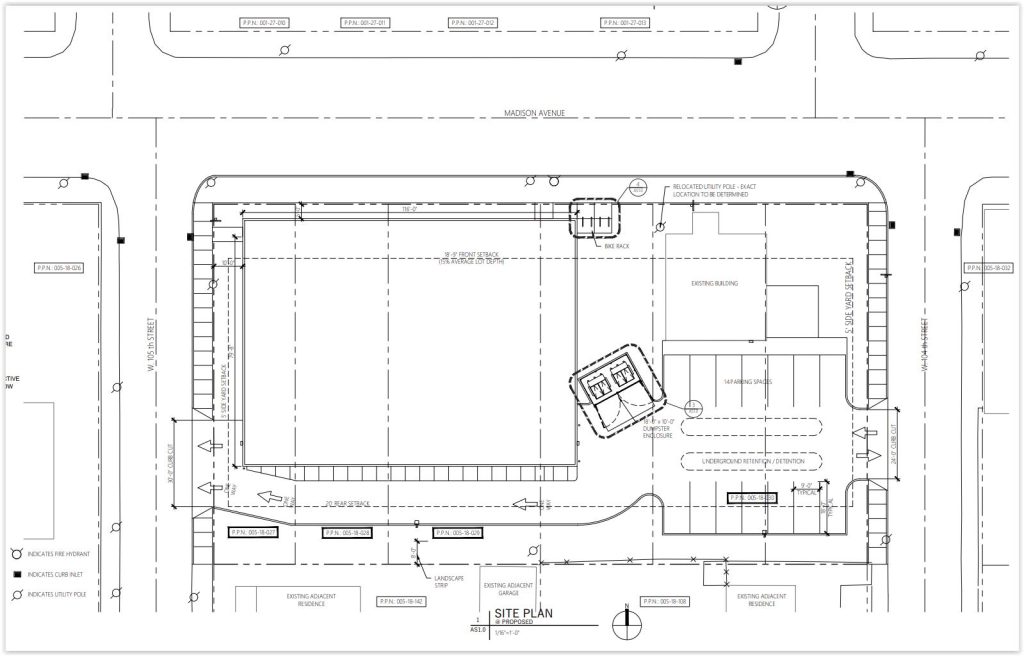
On Dec. 19, City Planning Commission unanimously gave their final approval to those million-dollar-plus expansion plans, offering minor suggestions of adding landscaping along the west side of the building along West 105th Street and providing more lighting along Madison.
Starr and Piper have been considering this expansion for at least a couple of years, public records indicate. Under the name Pie-O-My LLC, the couple purchased the ex-restaurant and its one-third of an acre of land in May for $200,000 from Florida-based Interstate Cleveland Properties LLC, county records show.
But the new building will be constructed next door on vacant land they purchased in 2024 as Camelot Bakery LLC for just $20,000 from Cudell Improvement Inc., which is part of Northwest Neighborhoods Community Development Corp.
Together, these purchases amount to two-thirds of an acre, filling an entire city block along Madison, a street that has seen businesses flee in recent decades. But that started changing in a big way several years ago when Amazon built a massive distribution center one block west at Madison and Berea Road.
Camelot’s existing building may be converted into a retail operation in the future. They have additional plans as the new building won’t happen all at once. It will be constructed in two phases, expanding from east to west using a colorful exterior scheme.
“We played with a color palette, dealing with actual, obtainable colors,” said Joe Moore, an architect at Meraki Architects of Middleburg Heights at December’s commission meeting. “What we’re trying to is break up the façade along Madison to avoid looking like a big warehouse.”
The structure’s brick, wood and metal façade will be illuminated using uplighting. Based on input given at prior planning commission meetings, the design gained horizontal glass block windows along the sidewalk to make the building seem less like a fortress.
A first phase of the expansion proposes a nearly 6,000-square-foot building featuring spaces for baking equipment, a freezer, a cooler, a dry storage area, lunch/meeting room, office, bathroom and a future on-line order pickup area.
The second phase offers potentially another 4,000 square feet of space, although its internal uses are not detailed in publicly accessible plans. There is a future palletized shipping area next to it. A drive-through loading area for vans is planned on the south side of the structure.
Both the drive-through loading area and an exterior driveway from the employee and visitor parking lot are one-way only, exiting onto West 105th north of a residential area. Vehicular access to the site is from West 104th. There are no driveways planned to/from Madison.
Getting to this point has been a nearly two-decade-long dream for Starr and Piper. Camelot Bakery was incorporated in 2009 and they started out by using the kitchen of the now-closed Saucy Bistro in Westlake at night when the restaurant wasn’t open.
Piper is a graduate of the International Culinary Arts and Science Institute in suburban Chesterland while Starr was a financial analyst. He quit his job to work full-time for the bakery.
END





