How do you plan for and build a large, new production facility on both sides of a municipal boundary? Carefully.
That’s what Beachwood-based manufacturer Tremco Inc. has had to do while proposing a $25 million, 113,100-square-foot building for expanding its commercial sealants and waterproofing division called Mameco.
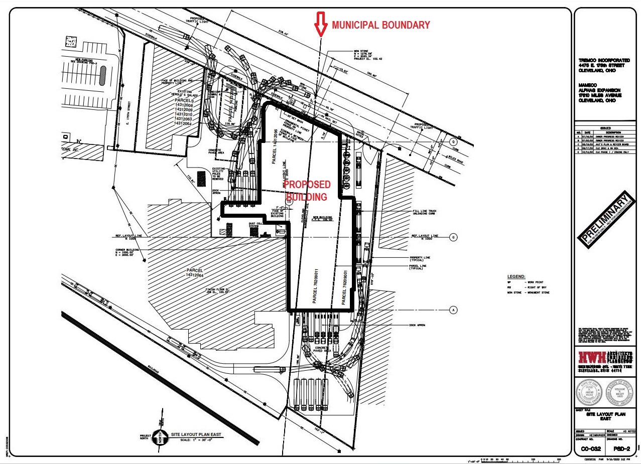
The expansion is of their 150,000-square-foot Cleveland plant on Miles Avenue at East 175th Street. That plant is proposed to expand east into Warrensville Heights to increase their production of AlphaGuard rooftop sealant.
Tremco’s expansion project was designed by HWH Architects Engineers Planners Inc. The firm explained the complicated expansion to both cities in a July 28th letter by HWH Vice President Philip Rozman. The letter appeared as part of a permit application filed with the city of Cleveland.
“As the planning of (the) building progressed to accommodate the manufacturing process, the size and location of the building was deemed necessary to encompass both the Cleveland and Warrensville Hts. parcels and bridge over the Cleveland/Warrensville Heights city limit/lot line,” Rozman wrote.
![]() |
| The proposed 113,100-square-foot expansion of Tremco’s plant is shown here — as is the location of the municipal boun- dary between Cleveland and Warrensville Hts (B&H/HWH). |
“Initial review of the site layout plan by the ahj (authorities having jurisdiction) prompted the requirement of a party wall on the city limit/lot line in order to provide separation between the portion of the building on Cleveland property and the portion of the building on Warrensville Heights property,” he added.
“A party wall constructed per the requirements of Section 706.1.1 of the 2017 Ohio Building Code along the city limit/lot line will be disruptive to the manufacturing process and likely deem the project not feasible to obtain the goals of the expansion,” Rozman said.
A party wall along the city limit/lot line would have to be a firewall with no openings in it. The solid wall would split the proposed building roughly equally in half and at a slight angle — creating an intolerable situation.
That building would be a new, 90,000-square-foot, two-level production facility fronted by a 23,100-square-foot, three-story structure for offices and mechanical, electrical and maintenance support activities. And each would be divided among two cities’ separate building codes and approval processes.
“The new structure as designed will be built over a parcel line without fire separation as required by the 2017 Ohio Building Code,” wrote Thomas Vanover, Cleveland’s chief building official in an Aug. 12 review of Tremco’s plans. “The parcels cannot be consolidated due to the fact that they reside in two different municipalities. An easement cannot be written, because the state of Ohio does not allow a property owner to grant an easement to themselves.”
| Additional views of Tremco’s plant expansion (B&H/HWH). |
Finally, the Ohio Building Code does not grant relief because it precludes the construction of a building on the adjoining property in the dedicated portion of the property. So HWH requested and got approved a design as provided for in another building code.
The design will use the 2018 International Building Code which allows for an exception to firewalls on parcel lines. In the exception, the aggregate height and area of the portions of the building located on both sides of the lot line do not exceed the maximum height and area requirements of the code.
So the new production building will not exceed two stories and 65 feet of structural height. The code allows for three stories and 85 feet. The support building won’t exceed three stories and 54 feet. The code allows for four stories and 75 feet.
The production area is rated as a moderate industrial hazard with automatic sprinklers and three-hour fire wall between the production and support areas, HWH wrote in its building permit application.
Tremco in 2017 acquired the two Warrensville Hts. parcels meansuring 1.84 acres for $360,000 from M&S Equipment Leasing Co., county records show. Two buildings on those properties were razed, as were two more buildings several parcels of land Tremco recently acquired on the Cleveland side. Data for those acquisitions was unavailable as the parcel boundaries were since redrawn by the county into a 0.7-acre plot of land.
Tremco’s existing Mameco plant in Cleveland’s Lee-Miles neighborhood is set on 9.2 acres. With the new property acquisitions, Tremco’s total land area for the Miles Avenue plant and future expansion is now 11.74 acres. The existing plant wraps around behind Herold’s Salads, 17512 Miles.
Scott Gebler, Tremco’s marketing and communications specialist, did not comment on the proposed expansion although he acknowledged receiving two e-mails seeking more information about it.
Information requested includes the dollar value of the proposed investment and how many permanent jobs it would create. Lensa shows 26 jobs available at Tremco in Cleveland. But the expansion project is still a couple of years away from being completed.
- Park Apartments’ leasing stirs a phase 2
- Singer Steel site’s new uses revealed
- Pieces coming together for UC high-rise
- The next big expansion at Cleveland Clinic’s Main Campus is in the works
- AC Marriott Downtown Hotel, new CSA Group HQ get funding OK’d
- Ribbon cut on revived apartment tower that once was left for dead










