
The northwest corner of Rocky River Drive and Cleveland Parkway, north of Cleveland Hopkins International Airport, is the site of the first planned building in Scannell Properties’ expansion of the Cleveland Business Park. The two houses in the background are not part of the project (Google). CLICK IMAGES TO ENLARGE THEM.
Project may be larger than first reported
A major new light-industrial, warehousing, life sciences-type development project planned near Cleveland Hopkins International Airport will be larger and more immediate than first reported last month by NEOtrans. The project appears more immediate because there is a prospective tenant that is already shaping the plan.
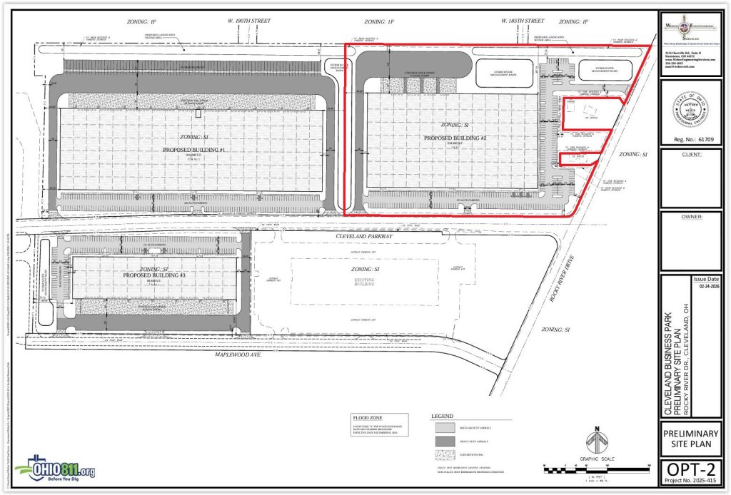
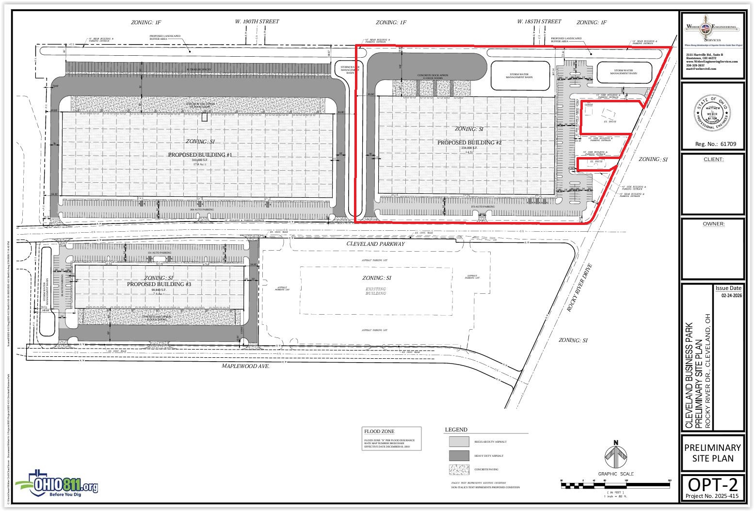
While the potential tenant wasn’t identified since it hasn’t yet signed a lease, the developer Scannell Properties of Indianapolis, has adjusted its plans to suit that end-user’s needs. That includes revealing a 234,000-square-foot building that would be the first structure in this roughly $75 million development.
Scannell won conceptual approval today, with conditions, from the Cleveland Planning Commission for the expansion of the Cleveland Business Park. Conditions included adding pedestrian access from Rocky River Drive, a detailed landscaping plan with emphasis on protecting the neighborhood to the north, and traffic studies for the Rocky River Drive access.
Three new buildings ranging from 100,000 to 300,000 square feet are planned but that could change based on interest by potential tenants. Total square footage among all buildings could be about 650,000 square feet. Desired interior clearances of 28-32 feet would mean exterior building heights of up to 37 feet.

A preliminary site plan for the expansion of the Cleveland Business Park with north at the top and Rocky River Drive to the right. The building and site improvements shown inside the red outline is the one pursued by a prospective tenant. It does not include two residential properties on Rocky River Drive (Scannell).
No wet retention ponds are permitted near the airport because they would attract water fowl which could get sucked into aircraft engines. So dry stormwater retention basins are planned. A landscaped barrier is proposed between the expanded business park and the neighboring residential area.
Cleveland Business Park was begun 20 years ago by Chelm Properties of Solon through an affiliate called Cleveland Business Park Ltd. The Cleveland Airport Rental Car Center is located here as are more than a half-dozen commercial users, the largest of which is Sysco Cleveland, a distributor of food and restaurant supplies.
“We are in deep conversations with a build-to-suit user, meaning that there is a tenant we would develop a project specifically to suit their exact needs,” said Jack Kelly, director of development at Scannell Properties. “We’re going to further refine this and define this as we progress conversation with the tenant.”
Scannell’s first building in the expansion would be located at the northwest corner of Rocky River Drive and Cleveland Parkway on land mostly owned by the City of Cleveland. Two homes still standing on Rocky River Drive are not part of the development site, plans show.
Across the rest of the site are 153 parcels on which a neighborhood set until 30 years ago, among Midvale and Forestwood avenues plus West 188th Street. All of the houses were acquired and demolished by the city and Federal Aviation Administration as part of an airport noise abatement program. The street rights of way have yet to be vacated.
“The reasons we love this site — very close proximity to the airport, very dense in terms of rooftops, labor force, skilled labor, and great proximity to (Interstates) 71 and 480,” Kelly said. “We’re excited about the tenant pool that can be drawn from here.”
Scannell indicated in a zoning review it submitted to the city’s Building Department last month that it has site control over the city parcels. It also also is partnering with Chelm for an additional 11-acre site south of Cleveland Parkway that brings the entire development site to 45 acres.
Scannell anticipates filling out the rest of the proposed development soon after the first building as a speculative effort. That means building structures before tenants are signed for them.
“We’re designing these projects for maximum flexibility in terms of tenants we’re seeing in the market,” Kelly told the planning commission. “We want to cast the widest net that we possibly can to attract as many strong, reputable, household names that we can to generate income and employment in the city of Cleveland.”
Planning commission member and Ward 15 Councilman Charles Slife, who represents this area, said he was glad to finally see some development activity emerging for this large swath of land that was vacated and left to sit unproductively.
“Obviously this land has been fallow for a number of years,” Slife said. “Frankly, it’s been a point of frustration for the residents who were forced out. I’m glad that this is moving forward, to say the least.”
The site is in the Riverside neighborhood of Cleveland. He urged the commission to authorize staff to expedite street vacations for the project so that it could move forward more quickly.
END





