
Proposed for the southwest corner of Lorain Avenue and West 38th Street, the Noble Beast Biergarten involves renovating an existing building while adding a greenhouse and patio for a year-round beer garden. The project’s backers say it will be the first such beer garden in Cleveland’s Ohio City neighborhood (Horton Harper). CLICK IMAGES TO ENLARGE THEM.
Former gas station site to be redeveloped

A long-vacant gas station and underutilized historic building at the southwest corner of Lorain Avenue and West 38th Street is proposed to become a near-west-side expansion for Noble Beast Brewing Co. But this wouldn’t be another brewpub in Cleveland’s Ohio City neighborhood. Instead, if realized, it would be the neighborhood’s first year-round beer garden.
Conceptual plans for redeveloping the site into the Noble Beast Biergarten won support from the Historic Ohio City Design Review Committee and the city’s Landmarks Commission, the latter occurring today. There were some concerns about impacts of noise, light and parking on the immediate area that could be eased with design modifications, commission members said.
However, the project was presented for design input, not for final approval yet. The commission noted that had received 96 public comments about the project with 72 of them in support of it, including support from Ward 3 Councilman Kerry McCormack.
The project will be the second location and thus the first expansion for Noble Beast Brewing which is located at 1470 Lakeside Ave. on the east side of downtown. The craft brewer opened in 2017 and has had a good run of success. That includes being named by Scene Magazine as Cleveland’s second- or third-best craft brewery in recent years.

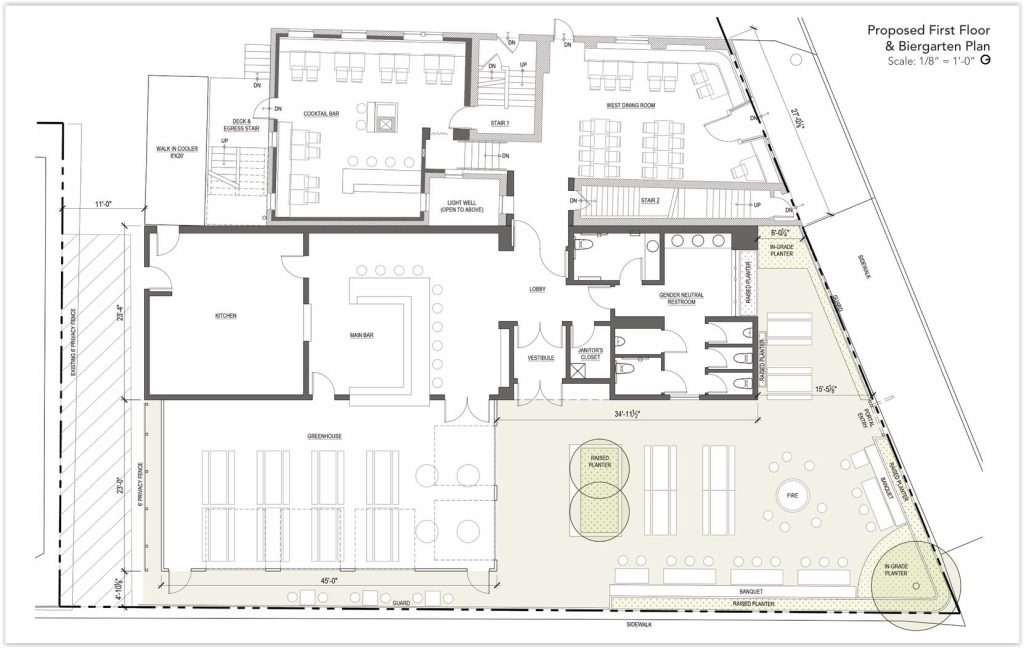
This proposed site plan and ground-floor layout shows the four basic areas of the Noble Beast Biergarten. At the top or west is an existing, historic building to be renovated. Next to it is a planned, enclosed, one-story addition. And next to it is the indoor and outdoor beer gardens (Horton Harper).
The principals leading the beer garden project are Brad Nosan, vice president of development at Beachwood-based Property Advisors Group, and Noble Beast Brewing founder Shaun Yasaki. Both are Ohio City residents — Nosan for 15 years and Yasaki for 12. And both have wanted to do a beer garden for years.
“A couple of years ago, I thought that Cleveland could really use a classic central/east European biergarten — the kind you would find in Berlin, Prague, Vienna,” Nosan told NEOtrans. “These are private businesses but feel like amazing public spaces. They are park-like in their design and have great communal seating and trees and umbrellas to provide shade.”
He said such settings are not to be confused with the big, noisy beer halls like Hofbrauhaus or what you see at an Oktoberfest. They are communal spaces and are very family-friendly. But this is a personal project for Nosan.
“I wanted that to exist within walking distance to my house in Ohio City so I could go enjoy with friends and family,” Nosan said.
Because of that, the rest of Property Advisors Group is not involved in it, he noted. However the company has many development projects nearby in Ohio City, Tremont and Detroit-Shoreway.
Nosan realizes he is a real estate developer, not a brewer or a restaurateur, even though he used to bartend at another brewery. And the person running that brewery was Yasaki. So Nosan reached out to Yasaki and discovered something. “Did you know that I wanted to make a biergarten?” Yasaki told Nosan.
“This is the kind of thing that I wish someone else had opened,” Yasaki said. “Just a low-key, walkable spot to enjoy good beer and good weather.”
So they formed 3801 Lorain Avenue, LLC and used the new company to buy the two-parcel, 0.2-acre property for a total of $460,000. It includes the former gas station and a 3,480-square-foot, two-story mixed-use building constructed in 1910.
While the gas station will be demolished, the historic, mixed-use building will be renovated with a first-floor dining area and cocktail lounge. Two second-floor apartments will be updated. The development team has already replaced the mixed-use building’s roof, tuckpointed its brick façade and spent $100,000 remediating the gas station site.
Next to it, a one-story, 1,920-square-foot addition is to be constructed with an enclosed main bar. Between that and West 38th will be a 1,035-sqare-foot greenhouse to provide the year-round beer garden in concert with the outdoor patio at the corner of West 38th and Lorain. The greenhouse will have garage doors to be opened in warm weather.
“During our dreary winters, where we don’t see the sun for two months, the greenhouse is designed to create a warm, communal and plant-filled space to get some Vitamin D,” Yasaki said.
Project architect Wes Harper of Cleveland-based Horton Harper Architects said the placement of the greenhouse between the outdoor patio and the neighborhood to the south is so that it acts as an “acoustic buffer” to limit any noise and light impacts.
Landmarks Commission members suggested other ways to limit impacts. That included designing the greenhouse with a solid, masonry south wall facing the neighborhood. Or it could include turning the enclosed addition 90 degrees along the south edge of the property so that it abutted West 38th and more of the greenhouse faced Lorain rather than West 38th.
Furthermore, additional vegetation screening was suggested by Landmarks Commission members and the design review committee proposed eliminating the southernmost garage door in the greenhouse to reduce noise on the neighborhood.
END






