
Plans for GlenHAVEN in Cleveland’s Glenville neighborhood, are being refined through the city’s design-review process. This proposed residential care facility would serve seniors and others with chronic illnesses, disabilities or other health conditions (Robert P. Madison International). CLICK IMAGES TO ENLARGE THEM.
Care center planned at E. 105-Superior

Just north of University Circle, the faded intersection of East 105th Street and Superior Avenue has seen development push toward it in recent years. But the tide of revitalization has yet to reach it and help restore its lost vibrancy and density of decades past.
The latest attempt to achieve that is emerging in a project called GlenHAVEN, a proposed care center for people with disorders and disabilities that’s been publicly hinted at for a long time but had yet to be shared widely. It is proposed to be built on 1 acre of vacant land at 10609 Superior Ave. and could be the first phase of something even larger.
GlenHAVEN is now out in the open after schematic plans were reviewed Aug. 19 by the Planning Commission’s North East Design Review Committee. And refined plans were submitted yesterday to the city’s Building Department. HAVEN is an acronym for Harvesting Affordable Value Enriched Neighborhoods.
Seeking to develop the roughly $26 million, 56,896-square-foot project is Cleveland-based Ryte 2 Development Corp., LLC, led by Briget Grant. She was in the second class of the Cleveland Equitable Development Initiative (CLE-EDI) that graduated several months ago after working closely with mentors to move their projects forward.
CLE-EDI is a joint effort by the Cleveland Development Advisors, part of the Greater Cleveland Partnership, the region’s chamber of commerce, and Village Capital Corp., an affiliate of Cleveland Neighborhood Progress, to support Cleveland-area real estate developers of color.
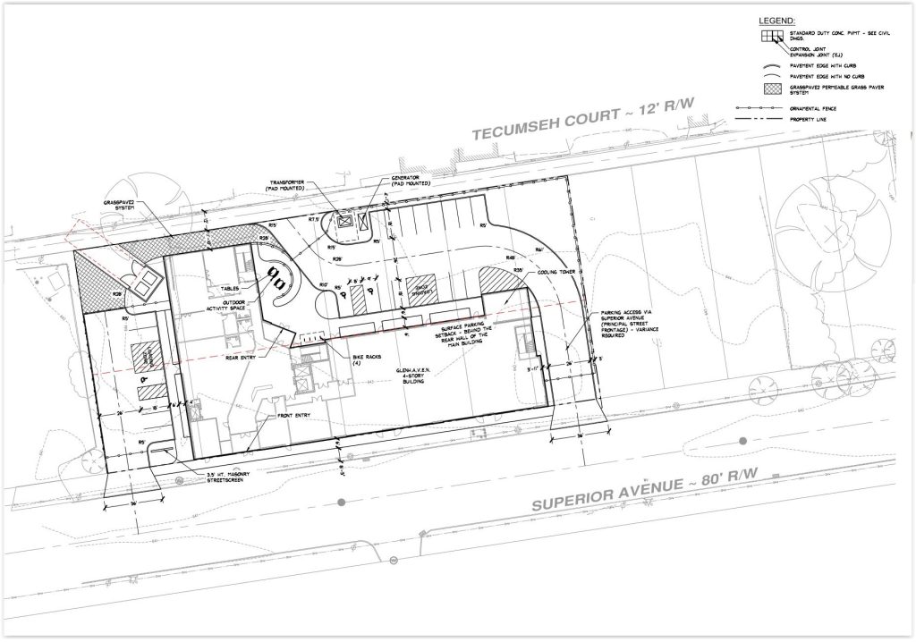
Plans by Ryte2 and Cleveland architect Robert P. Madison International Inc. show a four-story building with 71 housing units above a 7,000-square-foot retail space facing Superior, lobby, pharmacy, kitchen and three arts therapy rooms.
“The project has retail on the first floor and R2 occupancy above,” wrote owner’s representative Harley Cohen, founder of Harlan+Associates of Beachwood, in a zoning review application to the city. “The R2 occupancy consists of respite bedrooms on the second floor and intermediate care bedrooms on the third floor and administrative offices on the fourth floor.”
Residential Group R2 occupancies contain sleeping units or more than two dwelling units where the occupants are primarily permanent in nature. Respite care refers to temporary, short-term care provided to seniors and other individuals with chronic illnesses, disabilities or other health conditions to relieve their primary caregivers.
On the second floor are 33 mostly two-bedroom units measuring about 200 square feet each, although ADA-accessible rooms are about 300 square feet or larger. An 843-square-foot activity room plus two nurses’ stations are also on the second floor.
Another 34 one-bedroom units, each just under 200 square feet, are on the third floor, again with ADA-accessible rooms being a bit larger. A second activity room measuring 844 square feet plus a gym, reception area and laundry room are on this floor.
The fourth floor is smaller in area than the other three and features primarily offices. But it also has conference rooms, a wellness room, fitness center and lunch room. One of the offices has a small bedroom located off of it, plans show.
The development team plans 21 off-street parking spaces, even though the site is exempt from having any off-street parking as it is located in a city-classified Transit-Oriented Development (TOD) zone. The site is served by frequent, 24-hour Greater Cleveland Regional Transit Authority bus service on the No. 3 (Superior) and No. 10 (East 105th-Lakeshore) routes.
Proposed are two driveways from Superior to two parking lots, one on either side of the new building, requiring variances from building codes that prohibit driveways off main streets like Superior, according to a site plan updated as of yesterday.

A site plan that was presented to a design-review committee earlier this month shows only one parking lot and one entrance off Superior Avenue. Properties immediately east and west of this site are privately owned and not part of this development, although apparently not for trying (Robert P. Madison International).
An earlier plan presented Aug. 19 to the North East Design Review Committee showed only one driveway off Superior, leading to one parking lot on the east and north sides of the building. Both site plan variations also had driveway access off an alley, Tecumseh Court, behind the building.
Current zoning for the site is LR-G2 — local retail that can accommodate a gross floor area that’s three times the lot size and a building height of 60 feet. This four-story building is proposed to be 56 feet tall.
On Dec. 2, 2024, City Council approved selling 10 City Land Bank parcels to Ryte 2 Development. But the first phase is proposed on just six of those parcels, measuring 1 acre. And recent conceptual renderings by Robert P. Madison International show additional phases of development extending west to the northeast corner of Superior and East 105th.
That 0.8-acre corner property is owned by Mohammed J. Ali of Strongsville and Westlake, according to city records, and used for a Volume Beauty/Wireless store. The city has accused him of using more than 20 percent of the store’s floor/display area for the sale of smoke shop products.

A conceptual rendering for future development on the northeast corner of Superior Avenue (with most of the new development along it) and East 105th Street. Note the Superman logo in the middle of the intersection, as the creators of the Superman comics lived in Glenville (Robert P. Madison International).
He was cited July 30 by the city’s Building Department for illegally converting the occupancy of the structure to a smoke shop without the required permits. Ali appealed his citation to the city’s Board of Zoning Appeals (BZA).
But Ali did not appear at a scheduled Aug. 25 hearing, shown on YouTube. BZA Chair Alanna Faith said staff would reach out to Ali to see if he plans to appear before BZA.. If so, his hearing may be rescheduled.
In the past decade, development has been expanding north of University Circle along East 105th into Glenville, in a district branded as Circle North. That includes the second phase of mixed-use development called Churchill Gateway by NRP Group on Churchill Avenue where construction is underway on a 70-unit apartment complex. It follows a 52-unit first phase.
But not every project is advancing. A four-story, mixed-use building called Gold Coast Lofts was proposed by the Famicos Foundation at the southeast corner of Superior and East 105th. Plans for it were disapproved by the Building Department pending compliance with an April 2023 adjudication order. No update from Famicos was available.
END





