Roundstone Athletic Center to open Nov. 21
After more than a year of construction, the Urban Community School today announced that it is scheduled to open the Roundstone Athletic Center (RAC) with a ceremony at 9:30 a.m. Nov. 21.
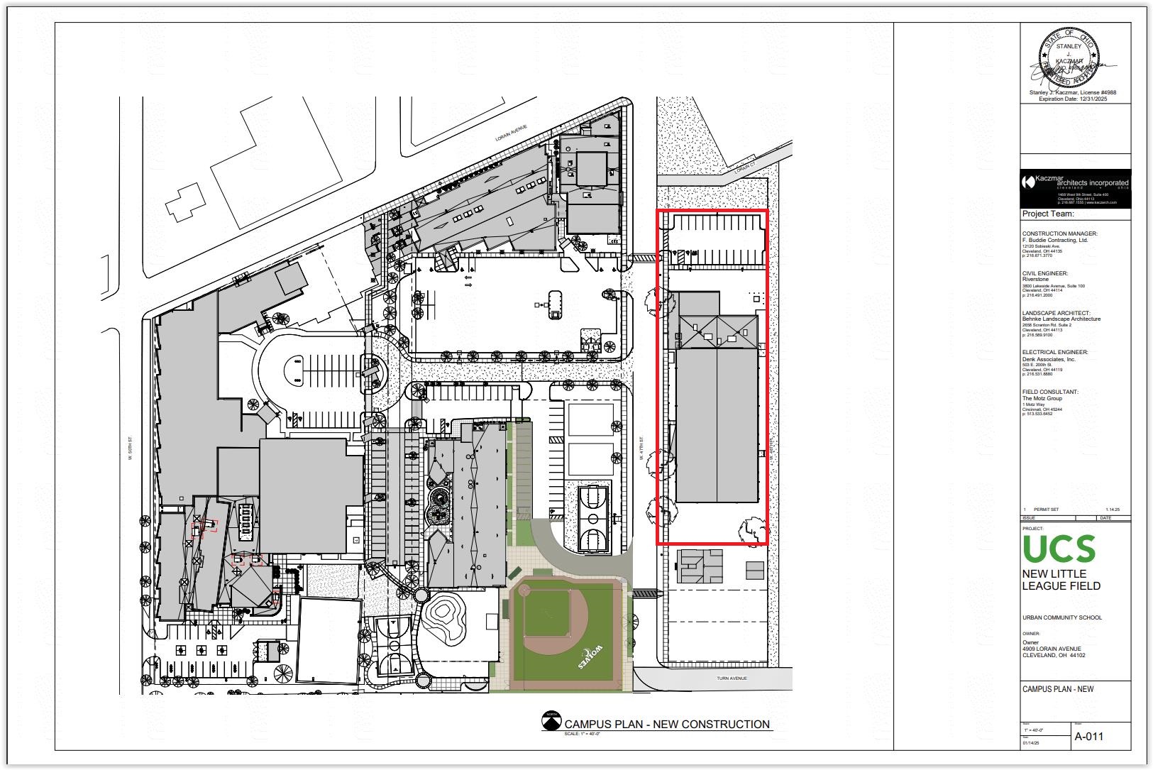
The new hub of athletics, education and community engagement now stands on West 47th Street just south of Lorain Avenue, where Cleveland’s Ohio City neighborhood meets Detroit-Shoreway. NEOtrans was first to break the news on the plans for the RAC last year.
The new $9 million facility will serve as a hub for athletics, education and community engagement on the city’s near-West Side. The 30,000-square-foot RAC features a three-court fieldhouse sponsored by the Glick Family with Roundstone Insurance of Rocky River sponsoring the overall center.
From 11 a.m. to 2 p.m., Saturday, Nov. 22, the school will host a community open house. All are welcome to attend and tour the new facility.
The RAC will also be the home of the Greater Cleveland Sports Hall of Fame and Museum (GCSHOF), honoring the region’s storied athletic history and inspiring the next generation of athletes and leaders.
The GCSHOF boasts a membership of 524 inductees across 30 sports on the amateur and professional levels. The 2025 inductees include Wanda Ford, Tianna Madison, Stipe Miocic, Chris Spielman, and Jack Turben.
“Too many kids today are missing out on the benefits of sports because the costs have created real barriers for families,” said Tom Gill, president of Urban Community School, in a written statement.
“The Roundstone Athletic Center was built to change that; to make sure access to movement, teamwork, and play isn’t determined by income or opportunity,” he added. “This is about opening the doors wider so every child can experience the joy and growth that come from simply being part of the game.”
The RAC represents another multimillion-dollar investment in the continued growth of the 15-acre campus on the near-West Side. Between the early education center, elementary school, and middle school, UCS has nearly 800 students enrolled.
Additionally, the campus is home to The MetroHealth System’s Ohio City Health Center; Urban Squash Cleveland, Facing History and Ourselves; Re:Source Cleveland; and House of Champions – all nonprofits whose missions align with UCS.
Faculty, staff, students, special guests, and media will celebrate this milestone for a grand opening celebration featuring tours of the facility, interactive exhibits, and possible opportunities to meet local sports legends.
The RAC will be joined by a new little-league baseball field at the south end of West 47th. And the RAC adds the heavily used gym attached to UCS’s main school building one block west and Urban Squash Cleveland’s busy facility at the southwest corner of Lorain and West 47th.
The RAC will offer to the community three courts for various uses including volleyball, basketball and pickleball. Attached to and north of that will be a two-story structure with restrooms, two classrooms, office space and the GCSHOF.
The new building will rise north of the House of Champions, 2059 W. 47th St., that hosts after-school programs run by Sr. Mary Kay Conkey. House of Champions is adding another house to the south of its current location on the east side of West 47th, filling out the entirety of the block.
UCS was founded in 1968 when schools within the St. Patrick St. Malachi schools merged into Urban Community School, founded by the Ursuline Sisters of Cleveland. St. Wendelin parish joined in 1976.
The school relocated from campuses at St. Malachi and St. Wendelin parishes to its current site in 2005 after Arrow International, a manufacturer of bingo supplies and other items, vacated the property and relocated its plant to Clinton Road in Cleveland.
John E. Gallagher Sr., the founder and then-owner of Arrow International, and his family donated the land to UCS. He passed away in 2021 but is remembered with the Gallagher Family Early Education Center that opened that same year.
END







