Low-income tax credit financing in hand
With funding in hand, a development plan to reactivate the site of the first Dave’s Supermarket is entering the City of Cleveland’s design review process. And so far, the early reviews of a proposed mixed-use development at 3301 and 3338 Payne Ave. in the city’s Asiatown district are positive.
The redevelopment, proposed as the Midtown Lofts, got an early thumbs-up from the Northeast Design Review Committee last month. The committee unanimously recommended that the full Planning Commission approve conceptual plans for the project in the coming weeks.
Midtown Lofts is a $42.3 million joint development of Cleveland-based NRP Group and the local community development corporation, Midtown Cleveland Inc., which has a 25 percent stake in the project. It was the first Dave’s Supermarket in what became a 12-store chain but it closed in 2019 and will be demolished.
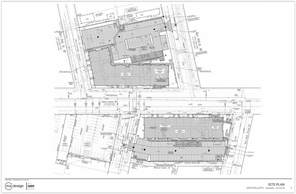
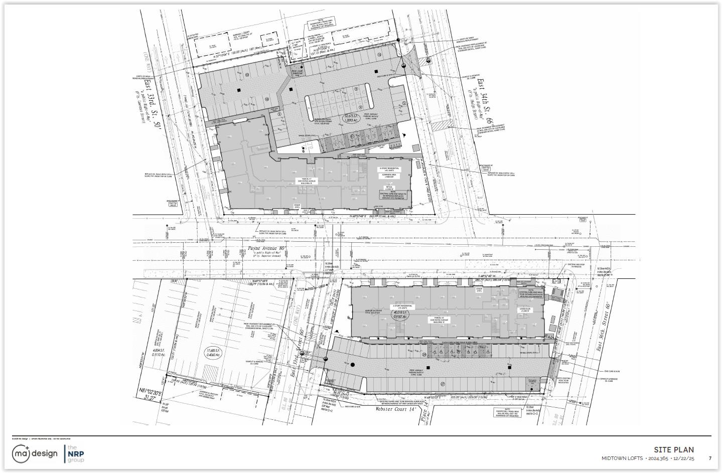
Proposed are a pair of four-story buildings with 120 affordable residential units total for persons of all ages. It is a mixed-use development because 3,500 square feet of leasable retail space will be offered in the north building, plans show.
The project got a big boost in December 2024 when it won from the Ohio Housing Finance Authority 4-percent Low Income Housing Tax Credits (LIHTC) to subsidize about 30 percent of the development costs. That will allow it to offer housing that’s affordable to more people.
Eight apartments will be affordable to those earning 30 percent of the area’s median income (AMI), 11 units will be for those earning 80 percent AMI and the rest, or 101 apartments, will be affordable to potential renters earning 60 percent AMI. According to the US Census, Cleveland’s AMI per household in 2024 was $40,801.
But what makes this development unique is that it is trying to attract families, not just young professionals or seniors with a preponderance of one-bedroom apartments. In fact, the development team is proposing more three-bedroom suites (38) than one-bedroom units (35).
In addition, another 47 two-bedroom apartments are planned, divided among the two buildings. On the north side of Payne, where the vacant grocery store now stands, Building B will offer 61 residential units in an L-shaped structure that wraps around the corner of East 33rd Street.
NEOtrans broke the story in 2024 that this project had emerged. The smaller of the two structures, Building A, will have a simple, rectangular block footprint and 59 apartments. It will be built on the grocery store’s former parking lot south of Payne.
The north building, or Building B is proposed to measure 70,507 square feet on a 1.2-acre lot while the south building, or Building A, is to be 60,997 square feet on a 0.92-acre lot.
There will be disabled-accessible units on all floors in both buildings, each served by a single elevator. Amenities will include exercise rooms, community areas with kitchenettes, outdoor seating, centralized laundry plus a mail lobby and package concierge.
The planned amount of parking for Midtown Lofts is proposed to be 127 spaces. Both buildings will have parking behind them — which was a matter of some contention during the project’s community input meetings that shaped the submitted design.
Some neighbors north and south of the development wanted less parking and more landscaped buffering. Others wanted more parking and fewer residential units in the new development. What they got in the plan were 6-foot-high, landscaped fences between the parking lots and adjacent neighborhoods.
For the southern building, that means a proposed landscaped fence along the north side of an alley called Webster Court. The northern building would have the proposed 6-foot-high fence next to an existing 8-foot-tall brick wall.
To the west of the southern building is another parking lot that, like the other two parcels, is owned by owned by Dave’s Markets CEO Burton Saltzman, son of the founder and market namesake Dave Saltzman. All three parcels will be acquired by Midtown Cleveland Inc.
While it is shown as a parking lot in the development plans, Midtown CDC has been using it as a pop-up park for community events and programming. After Midtown acquires the land, the CDC will seek funding to convert it to a full-time park.
END







